
Com o avanço da arquitetura cada vez mais próxima da tecnologia e estética moderna, os elevadores estão se tornando partes fundamentais em prédios residenciais, comerciais e turísticos, deixando de fazer somente sua função de transporte, mas sendo um elemento importante de funcionalidade e estética desses locais. Partindo desse princípio, utilizamos cada vez mais os elevadores panorâmicos, que em muitas vezes causam grandes impactos em diversos ambientes quando corretamente planejados. Esse artigo irá abordar os elevadores panorâmicos, o que são, quais suas características normativas e principalmente a preparação do local onde será instalado.
Elevadores panorâmicos
Os elevadores panorâmicos são equipamentos de transporte vertical com uma ou mais faces transparentes com vidros temperados ou laminados. Esses vidros podem ser a meia altura ou vidro total, e em algumas situações, com o teto em vidro também, dando ao usuário uma visão ampla do ambiente externo durante o seu deslocamento. Podemos ter vários tipos de elevadores panorâmicos, desde os mais comuns, que são as cabinas tradicionais – que no lugar dos painéis são colocados requadros com os vidros, até cabinas com formatos diferentes, como por exemplo, redondo, hexagonal, etc. É muito comum também as portas serem de vidro.
Desafios
A instalação de elevadores panorâmicos em prédios torna-se um tanto quanto complicada quando não se tem o devido planejamento, porque normalmente esses equipamentos necessitam de uma caixa maior, principalmente para que tenha espaço para a limpeza dos vidros após a instalação do elevador.
Temos duas situações: a primeira seria quando a caixa já é existente e nem sempre as caixas foram construídas com uma estrutura que suporte a execução de aberturas para instalação de vidros. Assim, o estudo do local deve ser feito tanto estruturalmente quanto a viabilidade financeira e estética para a instalação, nesses casos é indicado sempre a instalação de uma caixa externa ao prédio, normalmente em estrutura metálica evitando mexer na estrutura já construída.
A segunda seria em prédios novos em fase de projeto. Nesses casos, um bom alinhamento com a engenharia e arquitetura do cliente resulta em uma perfeita definição de escopo do equipamento que será fornecido. Algumas situações, não tão incomuns, são quando o cliente deseja instalar um elevador no meio de uma escada, mas nem sempre é possível devido ao pequeno espaço disponível, as vezes por volta de 1,5 m. Sendo assim, é sempre importante consultar a equipe de projetos da empresa fabricante do elevador para avaliar se o espaço é suficiente ou não.
Tipo do elevador
Quando falamos de elevadores, qual o tipo de equipamentos devemos instalar? Existe alguma norma ou requisito técnico? A resposta é não, os elevadores são os mesmos dos convencionais com algumas características específicas (cabina mais pesada devido aos vidros, algumas peças são pintadas de preto para que fiquem ocultas ou até mesmo tem a necessidade de fabricação de chapas adicionais para ocultar outras peças).
É nesse momento que o consultor técnico que está atendendo o cliente deve alinhar todas as informações, como: quantos e quais lados do elevador serão panorâmicos? É desejado que todas as peças do elevador estejam “ocultas” ao usuário no momento do deslocamento? Perguntas assim são importantes porque muitos clientes são leigos e não conhecem toda a estrutura que compõe os elevadores, como guias, armações, polias, cabos de aço, limitador de velocidade, etc.
Assim, o cliente acha que está comprando um equipamento em que somente a cabina irá aparecer e acaba se decepcionando. Nas próximas figuras vou apresentar alguns modelos de elevadores e suas particularidades quando se tratam de elevadores panorâmicos e quais seriam os lados indicados para que sejam panorâmicos, evitando a visibilidade de peças.
Elétrico com casa de máquinas com contrapeso ao fundo
Esse seria o pior tipo para se trabalhar com elevador panorâmico. Isso porque em todas as faces há peças do elevador, com guias, limitador de velocidade, cabos de aço e o contrapeso.

Elétrico com casa de máquinas contrapeso ao lado
Como o contrapeso está na lateral, o fundo fica livre para a instalação de vidro, eliminando a vista de peças.

Elevador hidráulico
Sua estrutura normalmente é fixada somente em uma parede da caixa, sendo assim, temos a visão limpa de duas faces da cabina (fundo e lateral). Nessa situação, podemos colocar tanto a face esquerda quanto a direita, o que irá definir é o lado de fixação da estrutura.

Elevador elétrico sem casa de máquinas (com estrutura de arcada)
Esse caso é o mesmo do elevador hidráulico, com sua fixação somente de um lado temos duas faces limpas.

Elevador com cabina própria para elevador panorâmico
Existem elevadores que são feitos especificamente para ser panorâmico com cabina fundo reto, redondo, meia cabina panorâmica, etc. Existem diversos fabricantes, inclusive fabricantes que só fornecem as cabinas para serem adaptadas nos equipamentos.

Lembrando que as indicações acima não são uma regra, é possível sim instalar um elevador com as três faces panorâmicas em um elevador elétrico com casa de máquinas com contrapeso ao fundo. O único ponto de atenção é informar ao cliente que as peças do elevador serão vistas, em muitos casos isso também é aceito.
Vidros
É importante ressaltar que os vidros instalados nas cabinas não são vidros simples e sim vidros que possuem normas e certificações. A Norma ABNT NBR 16858-1 Elevadores – Requisitos de segurança para construção e instalação apresenta uma tabela indicando quando se deve ser utilizado vidro laminado e laminado e temperado e suas devidas espessuras. É recomendado sempre a consultar a Norma, pois ela indica ensaios que devem ser feitos nos vidros, principalmente se não atenderem a tabela a seguir:

Portas de vidro
Além das faces da cabina, as portas também são comuns de serem em vidro, inclusive portas arredondadas complementando a estética da cabina. É importante ressaltar que os vidros instalados nas portas, assim como nas cabinas, devem seguir itens normativos. Sendo assim, consultar a ABNT NBR 16858-1 Elevadores – Requisitos de segurança para construção e instalação é imprescindível.
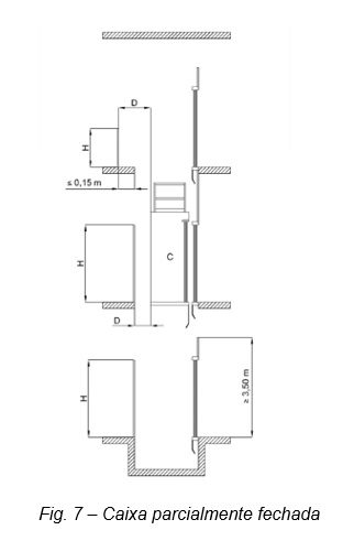
Caixa parcialmente aberta
É normal ver, principalmente em shoppings, elevadores panorâmicos com a caixa parcialmente fechada. A Norma 16858-1 Elevadores – Requisitos de segurança para construção e instalação também possui itens a serem seguidos (item 5.2.5.2.3), além de indicar que os fechamentos (normalmente na altura do poço) não devem ser perfurados, devem possuir dimensões mínimas e ainda indica as alturas mínimas conforme a distância entre as partes móveis.


Pontos de atenção
Alguns pontos que devemos nos atentar ao prever a instalação de elevador panorâmico:
- Viabilidade estrutural do prédio que irá receber o elevador e sua torre com vidro (principalmente em prédios existentes);
- Definir localização do elevador no prédio, se atentando a valorização e vista panorâmica;
- Utilizar vidros laminados e/ou temperados com certificação;
- Evitar que a face externa da cabina fique muito próxima ao vidro da caixa para que tenha espaço para limpeza dos vidros, considerar pelo menos 200mm de distância (a limpeza deve ser feita sempre com acompanhamento do técnico do elevador);
- Alinhar com o comprador as faces que serão panorâmicas e qual tipo de elevador pode apresentar mais peças visíveis;
- Na fabricação do equipamento, considerar que a cabina ficará mais pesada devido a instalação dos vidros, essa situação é importante para calcular a estrutura do elevador;
- Construção da caixa considerar vidros de segurança certificados, seguindo as normas, perfis que seguram os vidros devidamente especificados evitando entrada de água para a parte interna da caixa;
- Temperatura da caixa principalmente em locais que terão grande incidência de sol, assim prever ventilação adequada, ou também vidros tipo “fumê”;
- Sempre se atentar que a caixa de corrida do elevador sendo instalada ao tempo com possíveis incidências de entrada de água (como em parques aquáticos), prever a instalação de elevadores com peças blindadas com certificação para evitar falhas e quebra de componentes. Importante alinhar com o cliente essa situação, pois o equipamento fica mais caro. Em algumas situações, a preparação do local evitando a entrada de água, já irá reduzir o custo do elevador consideravelmente.
Considerações finais
Esse artigo mostrou um pouco sobre os elevadores panorâmicos, o que são, quais as suas utilidades em prédios residenciais, comerciais e turísticos e quais são os itens normativos que devemos nos atentar – não somente na fabricação do equipamento, mas também na preparação da obra para recebê-lo.
SOBRE O AUTOR

Júlio César Santos é Tecnólogo em Gestão da Produção Industrial, Pós-graduado em Engenharia de Produção, Engenharia Civil com Ênfase em Sistemas Construtivos, Engenharia Elétrica com Ênfase em Instalações Industriais e possui MBA Em Gestão de Projetos. Possui 18 anos de experiência no ramo de transporte vertical, tendo experiência em vistorias técnicas, treinamentos técnicos a gerentes de unidades e instaladores, e elaboração de projetos. Atualmente, trabalha com projetos de instalação e fabricação para diversas empresas no Brasil, levando conhecimento e auxiliando as empresas a fornecerem projetos e equipamentos dentro dos requisitos normativos.
Instagram @juliocesar_projetista.







